Новые подробности вокруг ситуации с парковкой в ЖК в Самаре

В Кировском районе областного центра разгорелись споры относительно строительства многоквартирного дома по адресу Стара-Загора, 249а. Информационным поводом стали публикации в местных СМИ и выступление депутата Александра Милеева, который выразил обеспокоенность возможной нехваткой машино-мест в будущем ЖК.
По словам народного избранника, застройщик объекта — ООО Специализированный застройщик «Успех» — предусматривает лишь 0,3 парковочных места на каждую квартиру. Это, по мнению Милеева, неизбежно приведет к перегруженности придомовой территории и прилегающих улиц личным автотранспортом жильцов.
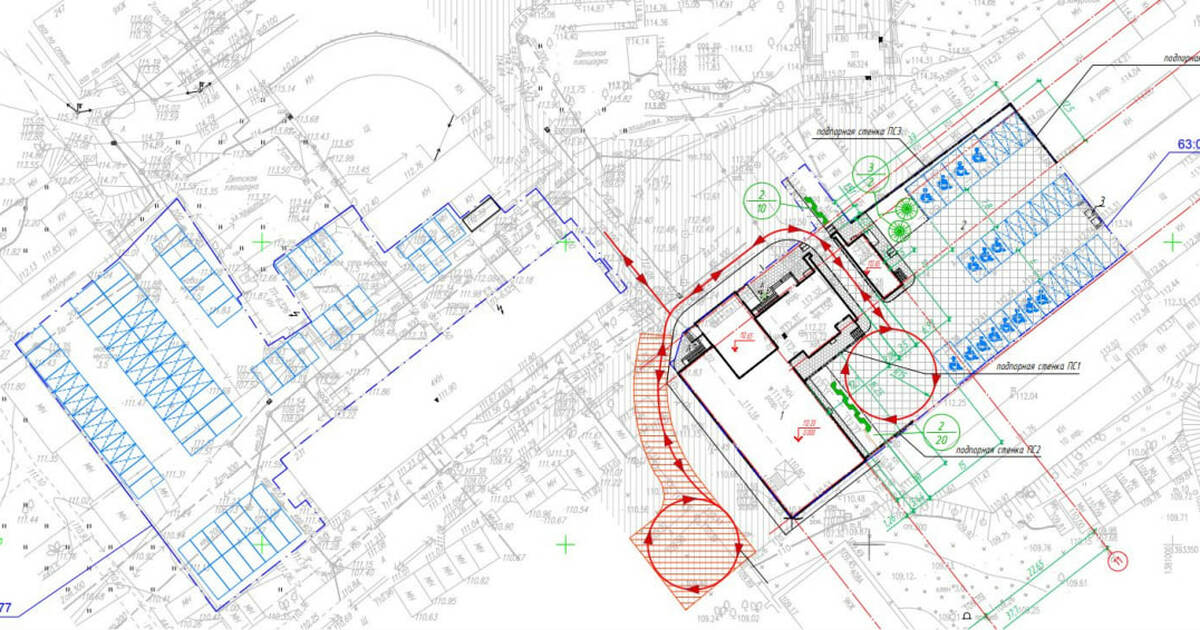
Журналисты ProGorodSamara выяснили, что первоначальная версия проекта, зафиксированная в декларации на портале Дом.рф от 13 февраля 2024 года, предполагала строительство подземного паркинга, который должен был полностью закрыть потребности новоселов.
Однако впоследствии архитектурные решения подверглись корректировке. Как следует из актуальной проектной документации, количество парковочных мест непосредственно на участке застройки было уменьшено до соотношения одно машино-место на три квартиры. Остальную часть удается закрыть благодаря приобретению соседнего земельного надела, который ранее принадлежал компании «Ростелеком». Эта территория, расположенная неподалеку от новостройки, теперь официально закреплена в проекте как дополнительная зона для постоянной парковки.
В компании-застройщике пояснили, что пересмотр концепции связан с рыночными реалиями: практика показывает, что спрос на места в подземных паркингах невелик, тогда как наземные стоянки пользуются гораздо большей популярностью. В результате, если суммировать места на основном и дополнительном участках, общий парковочный фонд составит 142 машино-места. Это полностью соответствует действующим нормативам, предполагающим одно парковочное место на квартиру. Таким образом, споры вокруг нехватки парковок возникли из-за перераспределения стояночных мест между разными участками, а не из-за сокращения их общего числа.



